133 m² wyjątkowej przestrzeni przy Parku Grabiszyńskim. Wyobraź sobie poranek z kawą na słonecznym balkonie, śpiew ptaków i zieleń tuż za oknem.
Kilka kroków dzieli Cię od Parku Grabiszyńskiego – przestrzeni, która staje się naturalnym przedłużeniem Twojego domu.
To nie jest zwykłe mieszkanie. To 133 m² komfortu, światła i harmonii, zaprojektowane z myślą o życiu, które ma smak.
OPIS
Dwupoziomowy apartament na 3 piętrze kameralnego, ogrodzonego budynku daje poczucie prywatności i swobody:
Aż 3 balkony, w tym jeden ponad 10 m² – każdy z nich daje inną perspektywę i chwilę tylko dla siebie.
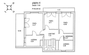
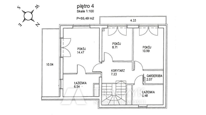
Poziom I:
Poziom II:
Apartament został wykończony z dbałością o detale i przy użyciu wysokiej jakości materiałów:
Życie przy Parku Grabiszyńskim to coś więcej niż adres:
A jednocześnie:
To rzadkie połączenie: cisza, natura i miasto w idealnej równowadze.
NAJWAŻNIEJSZE ATUTY NIERUCHOMOŚCI
Pomogę Ci w zakupie tej nieruchomości. Razem z Biurem Traczyk Nieruchomości sprawdziliśmy jej stan prawny i dokumenty. W odpowiednim czasie nasz notariusz przygotuje umowę notarialną, a doradca kredytowy wybierze najlepszy kredyt w banku i wypełni wszystkie dokumenty za Ciebie.
Możesz nam również zlecić Zarządzanie Najmem tej nieruchomości.
Zapraszamy - Traczyk Nieruchomości.
Niniejsze ogłoszenie nie stanowi oferty w rozumieniu przepisów Kodeksu Cywilnego oraz właściwych przepisów prawnych, a dane w niej zawarte mają jedynie charakter informacyjny.
Opis oferty zawarty na stronie internetowej sporządzany jest na podstawie oględzin nieruchomości oraz informacji uzyskanych od właściciela, może podlegać aktualizacji i nie stanowi oferty określonej w art. 66 i następnych K.C.




Uwaga: mogą wystąpić dodatkowe opłaty za założenie księgi wieczystej oraz ustanowienie hipoteki.