Kąty Wrocławskie (gw), Mokronos Dolny

Lokal na wynajem

Opis nieruchomości

powierzchnie biurowe - tuż przy AOW - Wrocław Zachód
świetna lokalizacja - duży parking - dostępne od zaraz


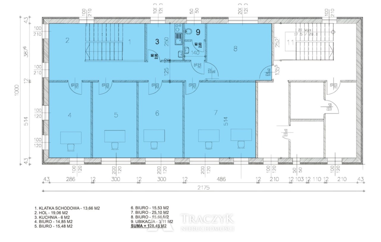
Do wynajęcia przedstawiam powierzchnię biurową o metrażu 128,5 m2Budynek zlokalizowany jest przy ulicy Parkowej w Mokronosie Dolnym, tuż przy zjeździe z AOW i przy głównym wjeździe do części miasta Wrocław-Zachód. Z uwagi na szybki dostęp do kluczowych arterii komunikacyjnych aglomeracji wrocławskiej, lokalizacja ta zapewnia doskonałe warunki do prowad
zenia działalności biznesowej. W okolicy dostępna jest infrastruktura handlowo-usługowa, m.in. stacje paliw, punkty gastronomiczne oraz usługi codziennego użytku. W pobliżu znajdują się liczne obiekty biurowe, magazynowe i usługowe, co sprzyja prowadzeniu działalności gospodarczej oraz współpracy biznesowej. 


OPIS 


Lokal składa się z pięciu pokoi biurowych zgodnie z załączonym rzutem, klatki schodowej, kuchni, toalety. Przy wejściu na parterze dla najemców dostępna jest również recepcja. Lokal ma osobne wejście oraz alarm strefowy, dzięki czemu jest niezależny i dostępny 24h. Przed budynkiem dla Najemców i Klientów dostępny jest parking, a w przypadku konieczności korzystania z większej liczby miejsc parkingowych do wynajęcia możliwy jest również dodatkowo plac parkingowy z tyłu budynku.

Wszystkie media mają osobne podliczniki, więc Najemcy rozliczają się z faktycznego zużycia.
Do lokalu doprowadzone jest przyłącze światłowodowe.

LOKALIZACJA

Biuro położone w bezpośrednim sąsiedztwie Wrocławia, z szybkim i wygodnym dojazdem do Autostradowej Obwodnicy Wrocławia (A8/S8). Lokalizacja zapewnia sprawną komunikację z centrum miasta, głównymi dzielnicami biznesowymi oraz autostradą A4.

W okolicy dostępna pełna infrastruktura usługowa, m.in. stacje paliw i punkty handlowe. Dogodne miejsce dla firm ceniących łatwy dojazd dla pracowników i klientów oraz dobrą dostępność komunikacyjną bez konieczności wjazdu do centrum Wrocławia.

ZALETY:

  • Powierzchnia biurowa 128,5 m² – funkcjonalny układ 5 pokoi biurowych

  • Tuż przy Autostradowej Obwodnicy Wrocławia (A8/S8) – szybki dojazd do Wrocławia i autostrady A4

  • Wrocław Zachód – bezpośredni wjazd do zachodniej części miasta

  • Duży parking przed budynkiem dla Najemców i Klientów

  • Możliwość wynajęcia dodatkowego parkingu z tyłu budynku

  • Osobne, niezależne wejście do lokalu

  • Dostęp 24/7 – alarm strefowy

  • Recepcja w budynku dostępna dla Najemców

  • Przyłącze światłowodowe

  • Osobne podliczniki mediów – rozliczenie według faktycznego zużycia

  • Zaplecze socjalne – kuchnia i toaleta

  • Otoczenie biznesowe – biura, magazyny i punkty usługowe w pobliżu

  • Pełna infrastruktura handlowo-usługowa w okolicy

Opłaty

Miesięczny czynsz najmu to 8000 netto PLN
Opłaty wg zużycia


Koniecznie zadzwoń i umów się na prezentację.

Zapraszamy - Traczyk Nieruchomości.

Niniejsze ogłoszenie nie stanowi oferty w rozumieniu przepisów Kodeksu Cywilnego oraz właściwych przepisów prawnych, a dane w niej zawarte mają jedynie charakter informacyjny. 


 

Nota prawna

Opis oferty zawarty na stronie internetowej sporządzany jest na podstawie oględzin nieruchomości oraz informacji uzyskanych od właściciela, może podlegać aktualizacji i nie stanowi oferty określonej w art. 66 i następnych K.C.

Szczegóły oferty

Symbol oferty TRA-LW-5389
Powierzchnia 128,50 m²
Powierzchnia użytkowa 128,50 m²
Liczba pokoi 5
Piętro 1
Rodzaj budynku BUDYNEK BIUROWY
Standard
Opłaty wg liczników CO, prąd, woda
Stan lokalu do wprowadzenia
Stan prawny Współwłasność
Typ kaucji do uzgodnienia
Rodzaj lokalu jednopoziomowy
Przeznaczenie lokalu biurowy, handlowy
Dojazd asfalt
Alarm tak
Możliwość parkowania tak
Własny parking tak
Wejście od ulicy

Lokalizacja

Napisz do nas

Proszę wypełnić to pole
Proszę wypełnić to pole
Proszę wypełnić to pole
Proszę wypełnić to pole

Ta strona wykorzystuje pliki cookies w celach statystycznych oraz w celu dostosowania naszych serwisów do indywidualnych potrzeb klientów. Zmiany ustawień dotyczących plików cookie można dokonać w dowolnej chwili modyfikując ustawienia przeglądarki. Korzystanie z tej strony bez zmian ustawień dotyczących cookies oznacza, że będą one zapisane w pamięci urządzenia.

rozumiem